Chalet con piscina en Puerto de la Torre Málaga
VIVIENDA NO DISPONIBLE. Se vende chalet con piscina en el…
A CONSULTAR
Obra nueva, Venta
Desde 425.300€

















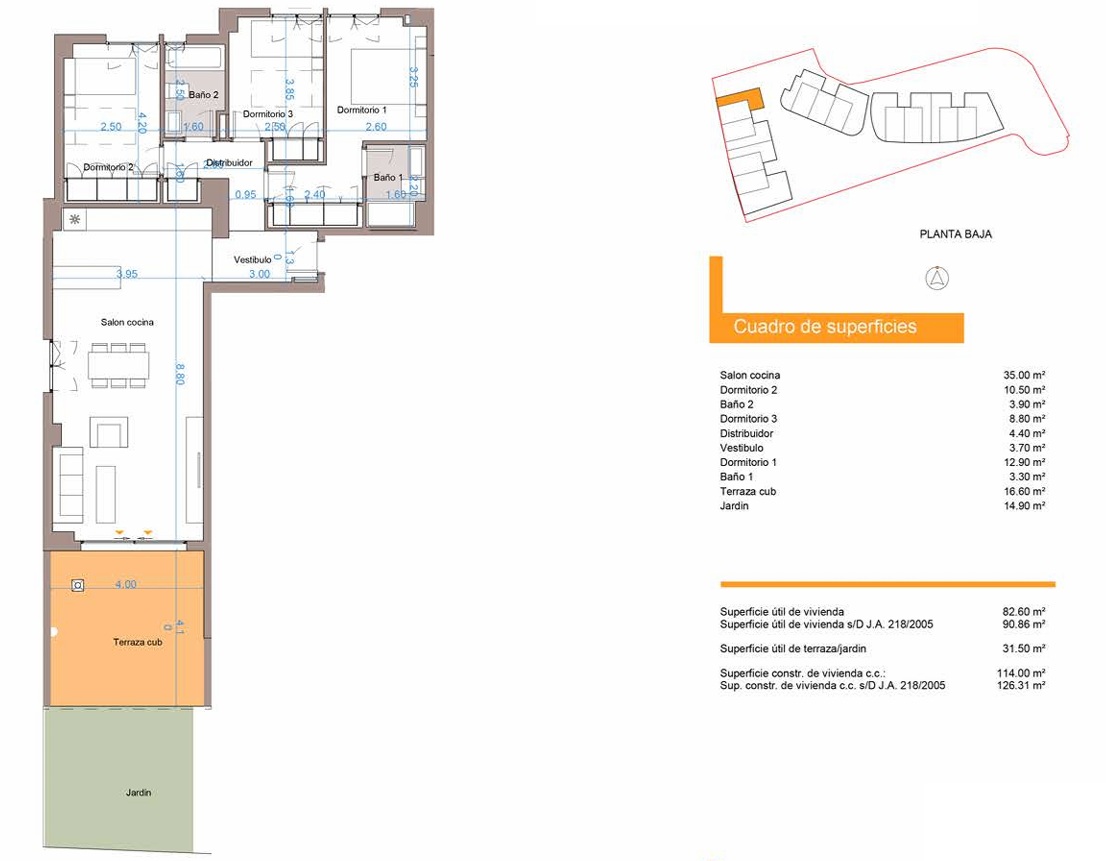
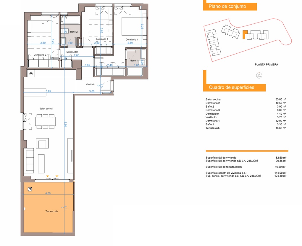
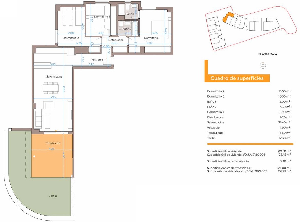
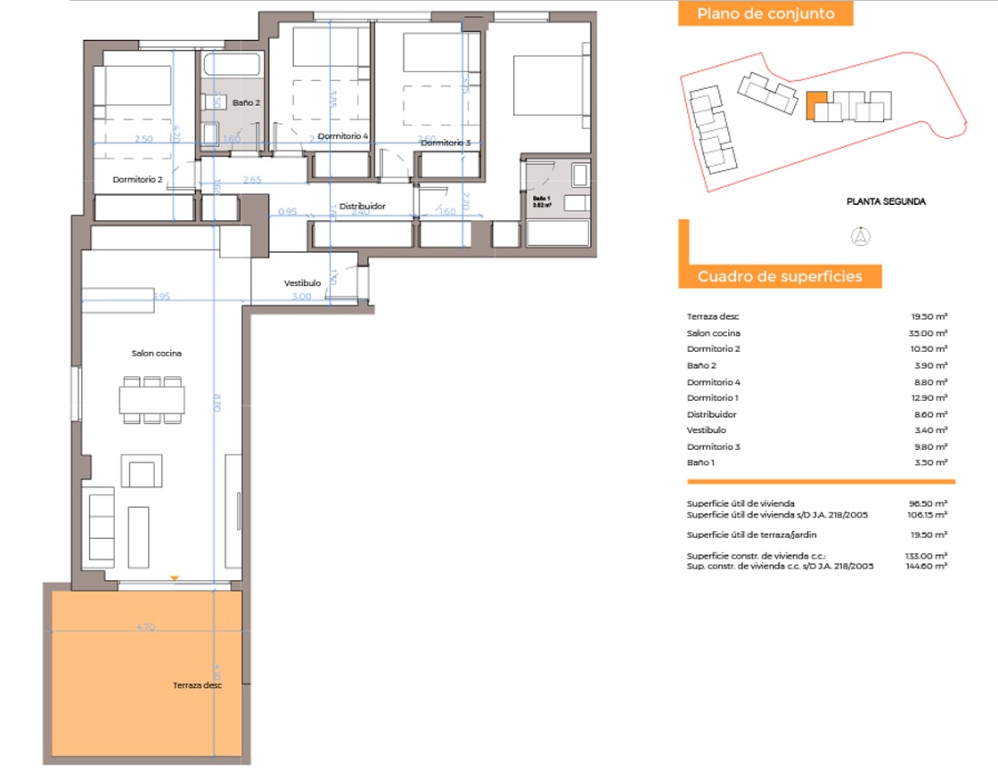
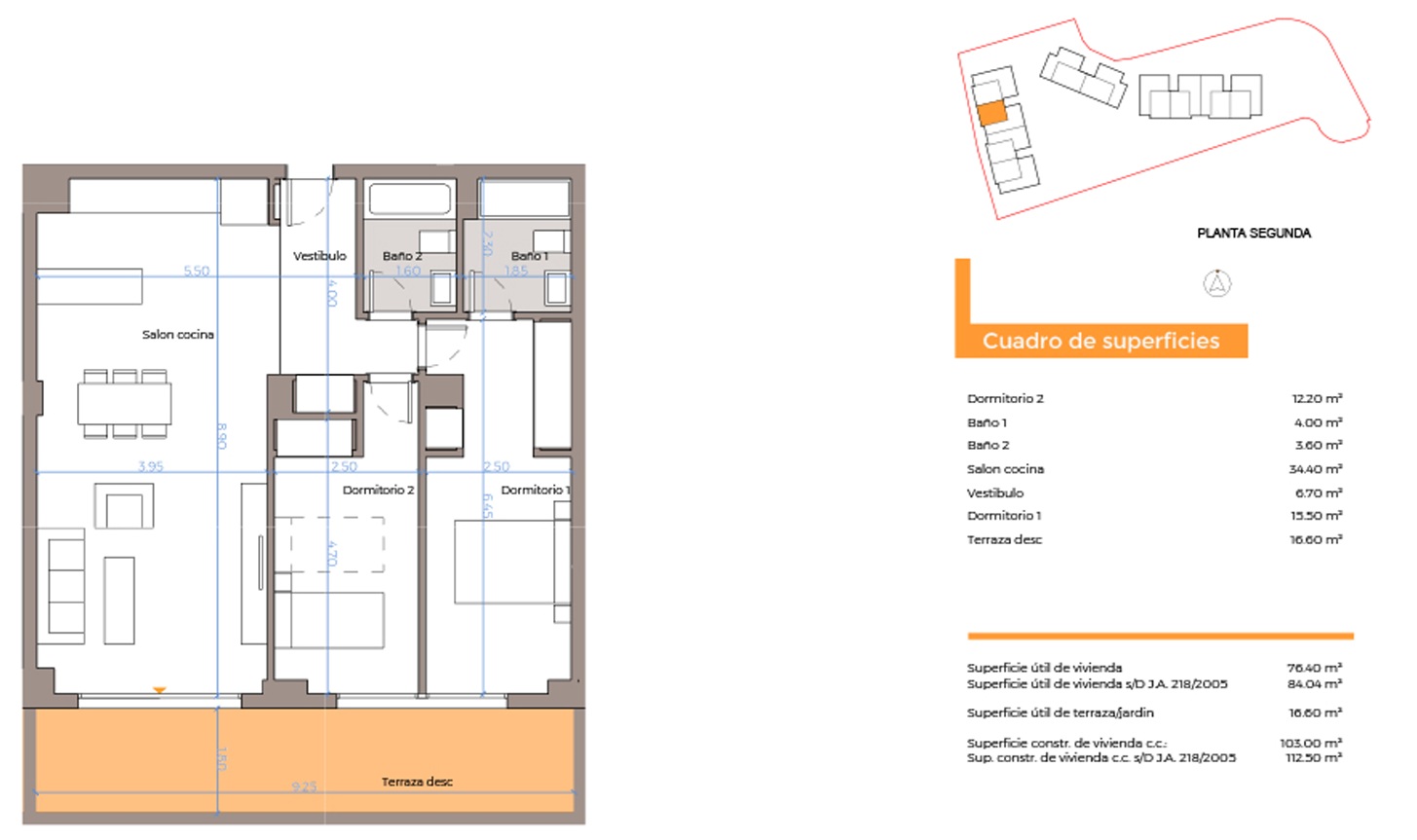
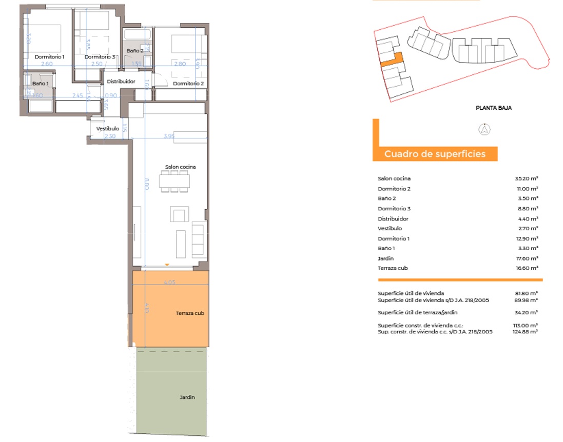
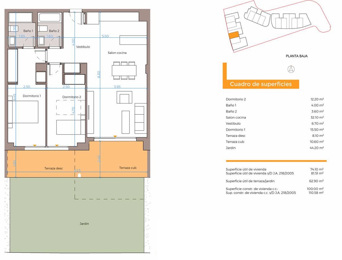
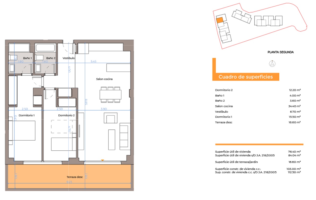
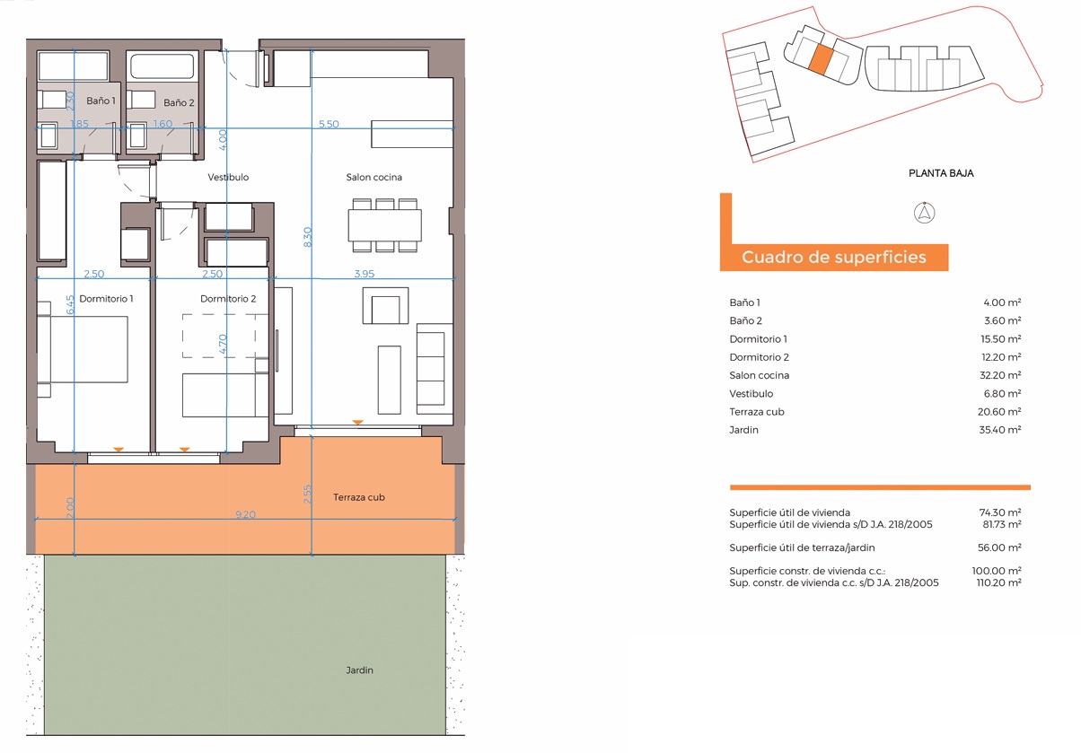
AYRE Estates comercializa Vitta Marina, un residencial en la Cala de Mijas compuesto por 72 viviendas de 2, 3 y 4 dormitorios con vistas al mar y a tan solo 2 minutos a pie de la playa. Distribuidas en planta baja, primera, segunda y ático. Todas las viviendas presentan una orientación al sur o suroeste lo que ofrece una gran cantidad de luz en toda la estancia durante todo el año.
¡Descubra su nuevo hogar en la Cala de Mijas! una ubicación ideal para vivir durante todo el año, su proximidad a supermercados, restaurantes, colegios, farmacias, centro médico, la playa, transporte público, le ponen al alcance todo los servicios que necesita en su día a día. Además su ubicación junto al mar hace de esta promoción una oportunidad única.
La urbanización cuenta con excelentes zonas ajardinadas, piscina comunitaria, gimnasio y sala social-gourmet. Los bajos cuentan con jardín y los áticos con amplias terrazas. Todas las viviendas disponen de plaza de aparcamiento y trastero.
Hay varios campos de golf de renombre cerca del residencial como el reconocido Chaparral Golf Club, a menos de 2 kilómetros. Vitta Natura se construye siguiendo un estilo urbano y comprometido con la eficiencia energética, con calificación grado B.
Sus cocinas abiertas a salón ofrece un espacio abierto e ideal para interactuar con sus seres queridos mientras cocina sus platos preferidos. Disfrute de una vivienda con materiales de calidad que le ofrece todo lo que pueda necesitar y con espacio suficiente para toda la familia.



Avance de la obra 50%. Reserva: 6.000€ + 10% IVA Compraventa: 30% + IVA Escritura: 70% + IVA. Consúltenos para conocer la disponibilidad real. Los precios pueden verse modificados sin previo aviso por parte del promotor.
VIVIENDA NO DISPONIBLE. Se vende chalet con piscina en el…
A CONSULTAR
Gran chalet adosado de esquina, en la zona del Mayorazgo.…
1.000.000€